
橡膠瓣止回閥
- 質量穩(wěn)定:實行全過程質量監(jiān)控,細致入
微,全方位檢測! - 價格合理:高效內部成本控制,減少了開
支,讓利于客戶! - 交貨快捷:先進生產流水線,充足的備貨,
縮短了交貨期!
我們?yōu)槟峁┤坠こ涕y門解決方案銷售熱線:0510-82828883
郵箱:beifava@163.com
地址:江蘇省無錫市新吳區(qū)新洲路222號
產品概述
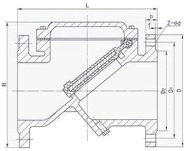
橡膠瓣止回閥主要由閥體、閥蓋及橡膠瓣三種主要零件組成。橡膠瓣止回閥其中橡膠瓣由鋼板、鋼棒及強化尼龍布做襯底,外層披覆橡膠制成,閥瓣開關壽命可達100萬次。橡膠瓣止回閥采用全流面積式設計,具有水頭損失小,不易堆積雜務,維修簡便等特性。該閥主要適用于給排水系統(tǒng),可安裝于出水口處,以防止倒流及水錘對泵損害。橡膠瓣止回閥還可安裝在蓄水池進出水管的旁通管上,以防止池水倒流至給水系統(tǒng)中。
橡膠瓣止回閥主要技術參數
公稱壓力:1.0~1.6MPa
公稱通經:50~600mm
適用介質:水及弱腐蝕性流體
適用溫度:0~80℃
法蘭標準:GB/T 17241.6 GB/T 9113
試驗標準:GB/T 13927 AP 1598
橡膠瓣止回閥主要零部件材料
| 零件名稱 | 閥體 | 閥蓋 | 閥瓣 |
| 材料 | 鑄鐵 | 鑄鐵 | 鋼材+強化尼龍布 |
橡膠瓣止回閥主要外形連接尺寸 單位:mm
| DN | 50 | 65 | 80 | 100 | 150 | 200 | 250 | 300 | 350 | 400 | 450 | 500 | 600 |
| L | 203 | 216 | 241 | 292 | 356 | 495 | 622 | 698 | 787 | 914 | 978 | 978 | 1295 |
橡膠瓣止回閥產品尺寸

